La herramienta Varias rutas se encuentra en la ficha Analizar, Análisis de ruta, Varias rutas. Esta herramienta se puede utilizar para emplazar dos opciones de camino de evacuación, las más cortas posibles, por medio de la determinación de un punto inicial del recorrido y un punto final del mismo.

Una vez seleccionada la herramienta, aparece un cuadro de diálogo llamado Varias rutas, donde se ha de especificar la separación mínima entre los dos caminos.

Una vez indicado el valor de separación mínima entre caminos, se ha de indicar el punto inicial y punto final del camino de evacuación.

En el cuadro de diálogo Configuración de ruta se puede modificar la categoría de familias a tener en cuenta como obstáculos.

Revit realiza los cálculos y emplaza los dos caminos de evacuación más cortos. Aparece un cuadro de diálogo informando sobre el número de caminos de evacuación creados y el valor de separación mínima entre ellos.

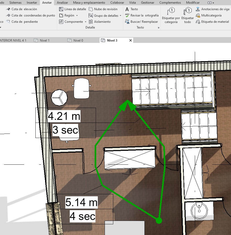
Los dos caminos de evacuación creados.

Se pueden etiquetar estos caminos de evacuación creados, con indicación de sus longitudes y el tiempo tardado en recorrer el camino.

Contenido Web de Yolanda Muriel está sujeto bajo Licencia Creative Commons Atribución-NoComercial-SinDerivadas 3.0 Unported.
