Los Niveles de referencia, como pueden ser Niveles, Rejillas y Planos de referencia, no se ven en todas las Vistas, ya que si estaReferencia no corta un Plano de vista ( o no lo corta completamente) esta Referencia no se va a ver en dicha Vista.
Un Nivel de referencia no se puede modificar. El Tamaño de su extensión se puede ajustar de forma que aparezca en determinadasVistas pero no en otras por lo comentado en el punto anterior. También las Extensiones de datos se pueden modificar en una vista y después extender dichos cambios a cualquier otra vista paralela en la que esta Vista sea visible.
También se puede usar Cajas de referencia para controlar la Visibilidad de la referencia.
En el ejemplo siguiente la Línea de nivel superior no se ve en la Vista de sección ya que su extensión de modelo (3D) no corta la línea de sección vertical.
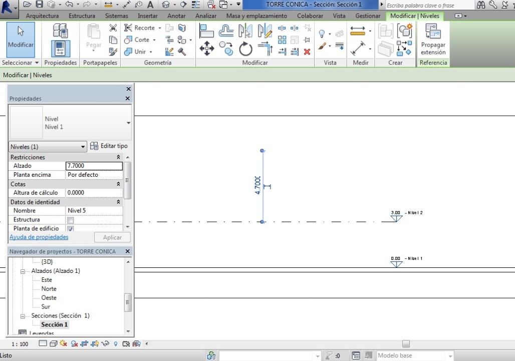
En el siguiente ejemplo se puede ver que la Rejilla solamente se verá en los dos primeros niveles, ya que su extensión de modelo (3D) no corta la tercera línea superior de nivel. El nivel 1 y el nivel 2 sí que se van a ver en la Vista de sección ya que éstos cortan el plano vertical que determina la Vista de sección. Sin embargo, el nivel 5 no va a ser visto en la Vista de sección por no cortar dicho plano vertical de sección.

Se puede además dar el caso de que exista una Referencia que corte una Vista de plano pero ésta no aparece en la Vista. Si se selecciona esta Referencia, se ve que toda su extensión específica corta el plano de la vista pero no su extensión de modelo. El círculo vacío es la extensión de modelo (3D) que no corta la sección. El círculo relleno es la extensión 2D que sí corta la sección. Como consecuencia el nivel superior no aparece en la Vista de sección.
Si una Plano de referencia o elemento de referencia no es perpendicular a una Vista este elemento no se verá en la vista.
Por ejemplo en una Vista de planta hay dos planos de referencia de los cuales uno de ellos corta la línea de sección en ángulo y el otro es perpendicular a la línea de sección. El primero no será visible en la vista de sección y el segundo sí.


Contenido Web de Yolanda Muriel está sujeto bajo Licencia Creative Commons Atribución-NoComercial-SinDerivadas 3.0 Unported.

