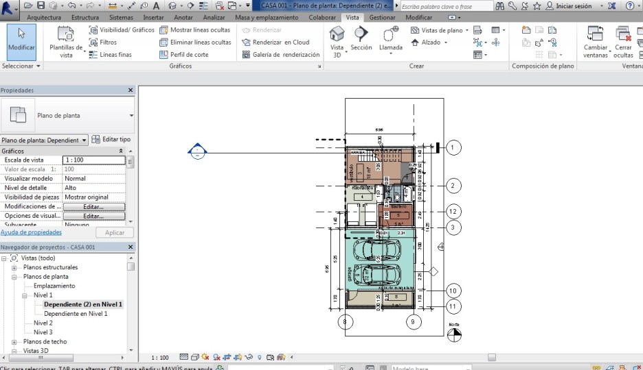
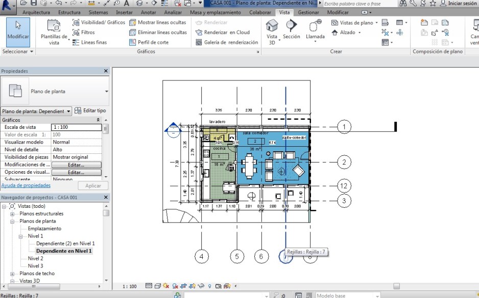
Una Vista dependiente es una copia de una Vista principal. Esta copia está sincronizada con la Vista principal y las demás Vistas dependientes (copias) que se realicen, de forma que cuando se produzca un cambio éste se reflejará en todas las Vistas.



Antes de situar la Referencia a vista, hay que indicar la Vista de destino. Cuando una Vista principal se divide en varias Vistas dependientes el programa permite relacionar las mismas entre ellas por medio de la Referencia a Vista. La lógica que sigue el programa es que en la Vista respecto la cual se relaciona la Referencia a Vista, no aparece dicha etiqueta. En nuestro ejemplo, si se coloca una Referencia a vista en la Vista dependiente de la derecha, la cual se relaciona con la Vista dependiente de la izquierda (es decir, a Vista de destino se le indica el nombre de la Vista dependiente de la izquierda), esta Referencia a Vista no aparecerá en la Vista dependiente de la izquierda, lo cual es lógico, ya que la Región de recorte de esta vista no permite que aparezca dicha etiqueta.

Contenido Web de Yolanda Muriel está sujeto bajo Licencia Creative Commons Atribución-NoComercial-SinDerivadas 3.0 Unported.

