CANAL DE CABLES
Para colocar una bandeja de cables lo primero que hay que realizar es abrir la vista donde se desea colocarla. Hay que ir a Sistemas – grupo Electricidad – Bandeja de cables. En la barra de opciones (barra superior) se ha de especificar la Anchura, Altura, Desfase de la bandeja (altura de la bandeja respecto el nivel actual, que se puede definir o bien utilizar uno ya definido en Rango de vista) y el Radio de curvatura (por defecto es la anchura de la bandeja).
Previamente a la realización de una bandeja de cables, hay que asegurarse de que la bandeja que se está utilizando tiene cargados sus parámetros. Para ello, una vez que accedemos a la opción de bandeja, hay que ir a Editar tipo, del cuadro de navegación, y allí encontraremos los parámetros de instalaciones: Curva horizontal, curva vertical interior, Curva vertical exterior, Te, Cruce, Transición y Unión. De esta forma, cuando se realiza una canal de cables, automáticamente el programa va realizando el tipo de unión adecuado a cada caso. Además, existe la posibilidad de realizar estas uniones independientemente, por medio de la opción Sistemas – Eléctrica – Unión de bandeja de cables.
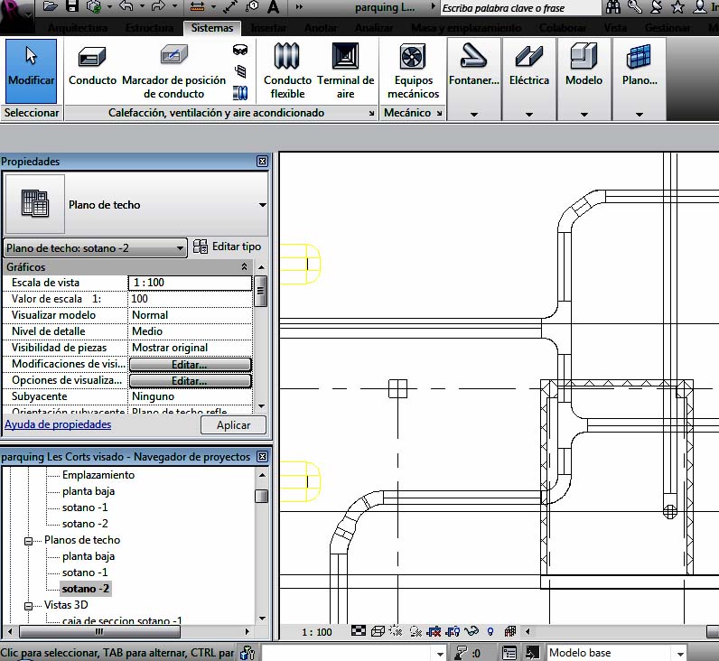
En la siguiente Vista de planta se puede observar Curva horizontal, Unión, Transición, y Te.
Y un ejemplo de unión Cruce se puede observar en la siguiente Vista de planta.
Para dibujar en planta la bandeja, hay que situarse en la Vista en planta que tenga un Rango de vista que incluya el nivel al que se encuentra dicha bandeja, ya que en caso contrario la bandeja no se verá en planta.
En el caso de realizar un recorrido de bandeja en sentido vertical, hay que situarse en sección para dibujar dicho recorrido, y el programa realiza también automáticamente las uniones para cambio de sentido, de anchura… También hay que indicar en la barra de opciones superior horizontal en qué nivel vamos a realizar la canal vertical, ya que si el nivel indicado es diferente al nivel en que se desea realizar la canal, el programa no nos dejará dibujar la misma.
En la siguiente sección se puede ver como el programa ha realizado automáticamente la pieza para la transición de secciones en recorrido vertical y la pieza para cambio de dirección en sentido vertical (curva vertical).
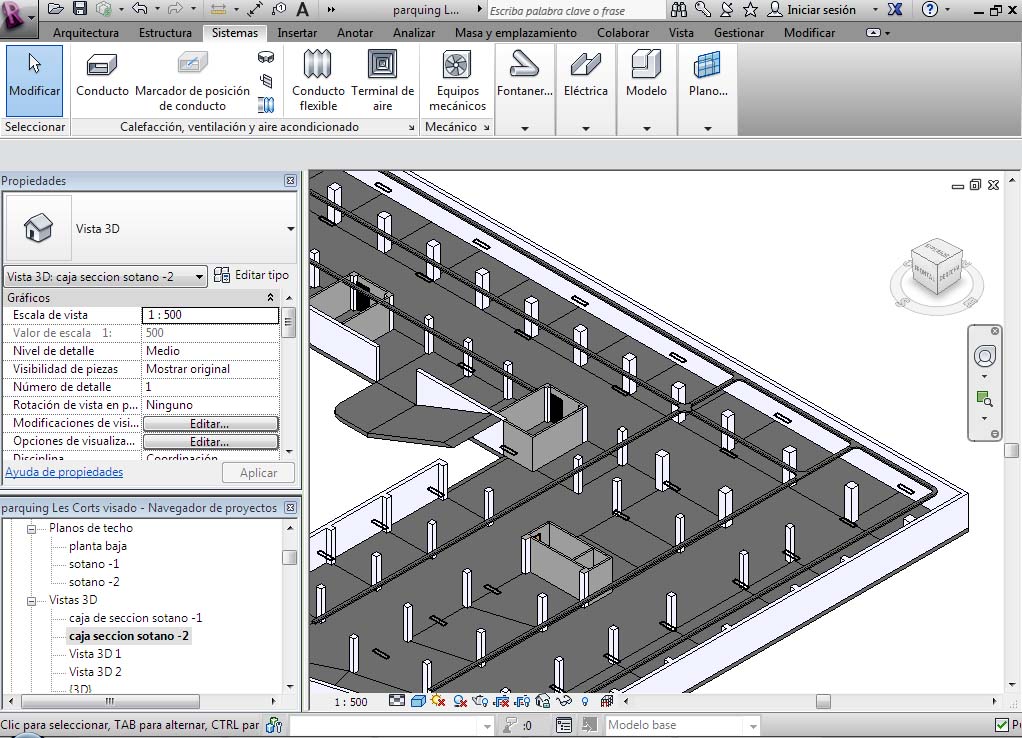
Una de las ventajas es poder visualizar las instalaciones en 3D.
Contenido Web de Yolanda Muriel está sujeto bajo Licencia Creative Commons Atribución-NoComercial-SinDerivadas 3.0 Unported.





