Existen dos tipos de cotas:
– Temporales, que son las cotas que nos proporciona el programa cuando creamos un componente o bien cuando seleccionamos el mismo.
– Permanentes, que son las cotas que crea expresamente el usuario de Revit.
¿Cuáles son las cotas temporales que nos proporciona el programa, entre todas las posibles? Aquellas que indican la posición o distancia de los elementos perpendiculares al elemento creado o seleccionado, y que son los más cercanos. El valor numérico de estas cotas aumenta o disminuye de una forma constante, la cual viene definida en Gestionar – Configuración – Forzado del cursor, donde aparece un cuadro con la opción «incrementos de forzado de cursor de cota» en la que se pueden definir varios valores de incremento, que irán relacionados con el nivel de zoom que se encuentre activo en la vista en el momento que el programa nos proporciona cotas temporales.
Existe la posibilidad de modificar la cota temporal, de forma que no haga referencia al elemento más cercano, sino que acote la distancia al elemento que se necesita o desea. Para ello hay que mover la línea de referencia de la cota temporal, y hacer clic con el ratón en la arista del elemento a acotar.
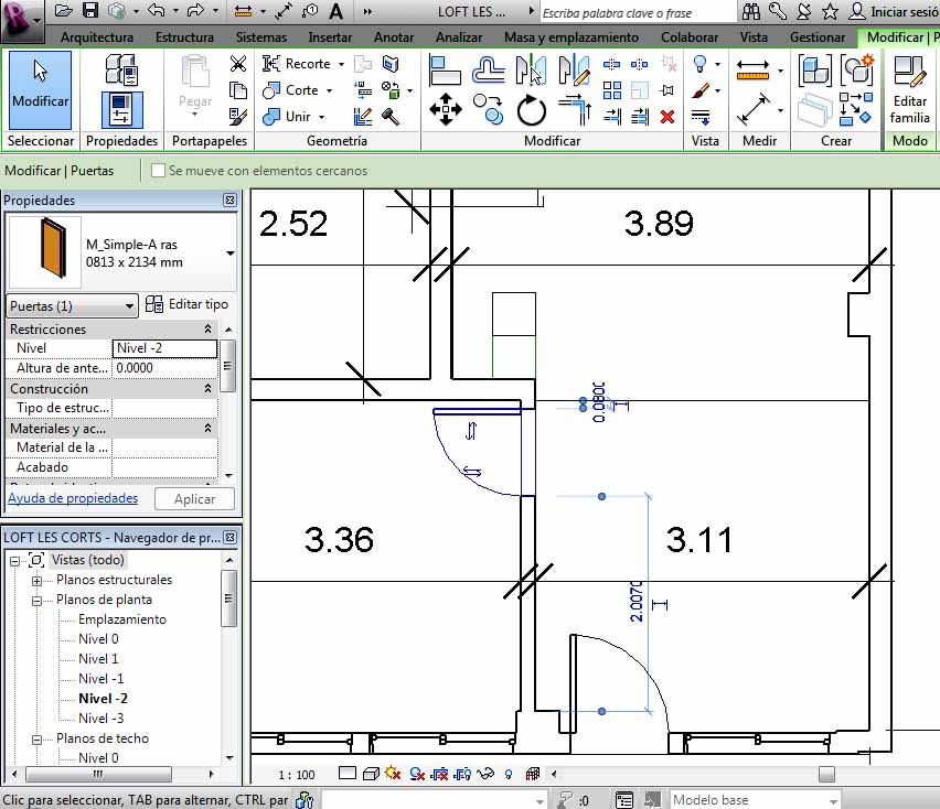
Por ejemplo, tenemos las siguientes cotas temporales, al seleccionar una puerta colocada en una pared:
Si seleccionamos la cota 2,82 que es la distancia de uno de los extremos de la puerta a un elemento perpendicular más cercano, como es el pilar de fachada, y movemos su línea auxiliar superior (con punto azul), se puede obtener por ejemplo, la distancia del otro extremo de la puerta respecto al pilar. Hay que tener en cuenta, que como si nombre indica, estas cotas desaparecen cuando dejamos de seleccionar el elemento o posicionamos un elemento, por lo que si se desea que permanezcan hay que elegir la opción de Cota permanente.
Cuando se seleccionan varios elementos del programa, no aparecen estas cotas temporales, pero con la opción que se encuentra en la barra de herramientas superior Activar cotas, se puede hacer aparecer las cotas temporales de estos elementos seleccionados.
Se puede transformar una cota temporal en cota permanente por medio de la selección del símbolo de flecha que aparece en la cota temporal.
En Revit – Opciones de Revit – Gráficos, se define el tamaño del número de la cota y el fondo (transparente u opaco).





