Este artículo es una continuación de los artículos número 175, 176, 195, y 209 donde se desarrollan diversos aspectos de la Tabla de Planificación.
En este caso se explica el procedimiento de cómo realizar una Tabla de planificación que calcule la Superficie construida de un proyecto. La tabla de planificación que proporciona por defecto Revit, no calcula la superficie construida tal y como se utiliza en los proyectos en España, por lo que para calcular esta superficie hay que realizar primero el perímetro de superficie construida. El primer paso es crear una Vista de área. Hay que ir a Vistas – Vistas de planta- Plano de área.
Aparece el siguiente Cuadro de diálogo, donde hay que elegir la opción de Área construida bruta y el nivel de planta donde se quiere calcular la superficie. Hay que deseleccionar la opción No duplicar vista existente. No duplicar vista existente
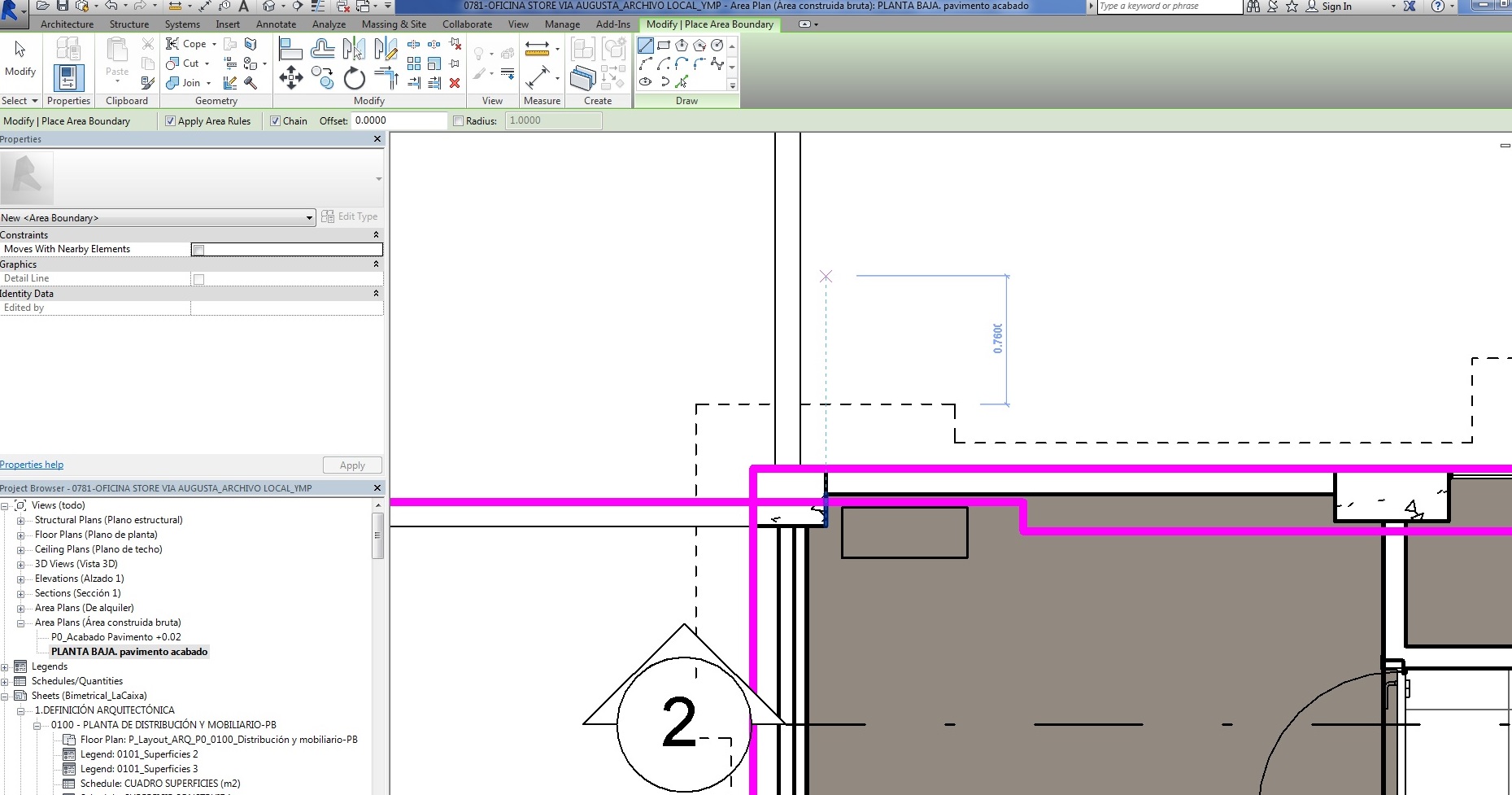
Aparece una Vista nueva en el Cuadro de navegación, y con la opción Habitación y área- Perímetro de área-Dibujar, hay que realizar el perímetro de la superficie construida de la planta.
Con la opción Habitación y área – Área, se establece por medio de una etiqueta el área en la planta.
El siguiente paso es realizar la Tabla de planificación, por medio de Vista – Tabla de planificación, de forma que aparece el siguiente cuadro de diálogo, donde hay que seleccionar la opción de área construida bruta.

Se accede al cuadro de diálogo de configuración de la Tabla de planificación, donde se han de indicar los campos que formaran la tabla, si tiene filtros, el formato y la apariencia (comentado en artículos anteriores del blog).
Contenido Web de Yolanda Muriel está sujeto bajo Licencia Creative Commons Atribución-NoComercial-SinDerivadas 3.0 Unported.





