La puerta corredera de vidrio Klein Pocket Glass, es una puerta corredera de vidrio sin marco con una guía superior vista o empotrada (oculta). No tiene guía inferior para dejar el paso de hueco libre. La guía superior es de aluminio anodizado Silver. La hoja corredera es de vidrio templado o laminado y se sujeta por medio de abrazaderas. El espesor del vidrio es de 10 o 12 mm permitiendo un peso de la hoja corredera de hasta 150 kg. La guía se puede sujetar a la pared o al techo.
La sección vertical de la guía superior es la siguiente:

El alzado de la puerta con sus distintas posibilidades es el siguiente:

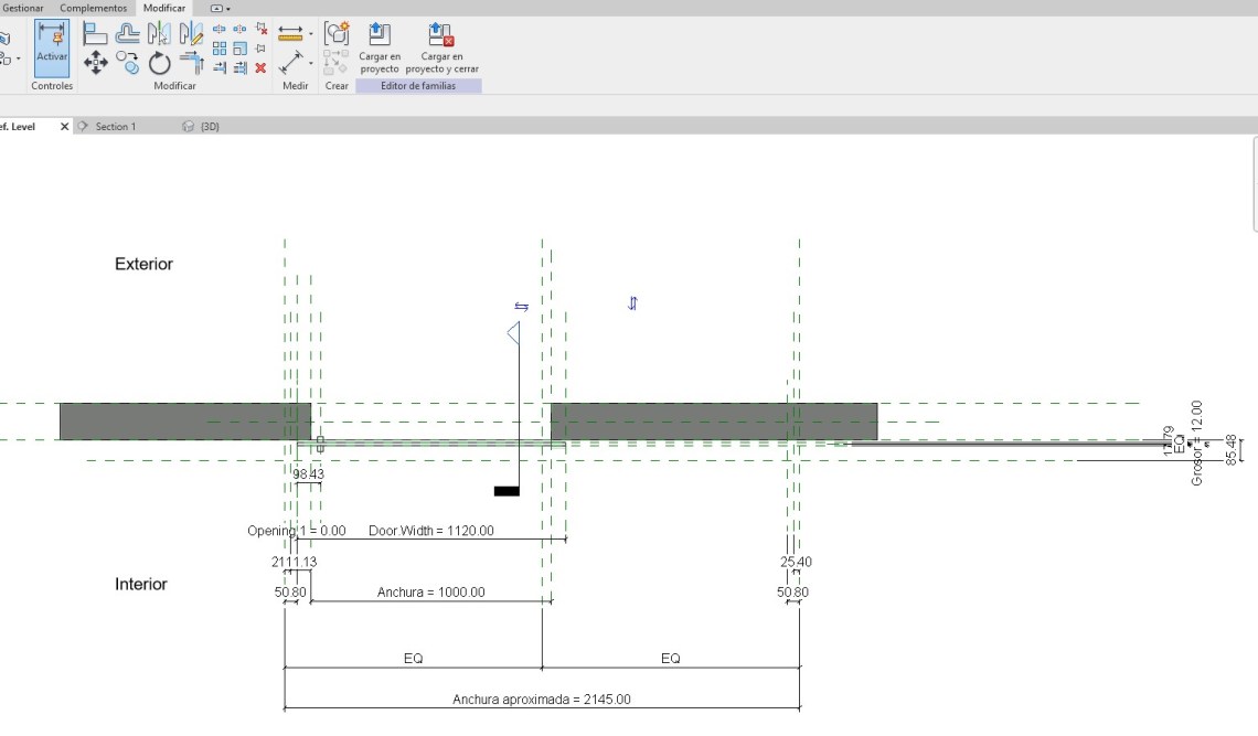
La sección vertical de la puerta con sus distintas posibilidades constructivas de instalación de la guía superior son:

Y una vista 3D de la puerta corredera:

El fabricante tiene un archivo revit de esta puerta klein-pocketglass.rvt que se puede descargar de su página web, y que tiene la siguiente vista 3D:

Y la siguiente Vista de planta:

En la sección podemos ver un elemento de detalle para el perfil de la guía superior:

El archivo como se puede ver en la imagen superior tiene cuatro elementos de detalle, en relación a guías superiores e inferiores.
© imagenes de detalles constructivos de la puerta corredera y del archivo revit de la puerta: Klein
Contenido Web de Yolanda Muriel está sujeto bajo Licencia Creative Commons Atribución-NoComercial-SinDerivadas 3.0 Unported.
