Primeramente, hay que configurar los parámetros de las instalaciones. En Gestionar-Configuracion MEP, existen tres posibilidades: Configuración Mecánica, y Configuración eléctrica, que nos permiten acceder a unos cuadros de diálogo, donde se puede configurar la forma de representar cada una de las instalaciones.
Para colocar las luminarias en el edificio, primeramente, hay que tener claro el concepto de Anfitrión, que es el plano de trabajo donde se ubican las luminarias, que por defecto es el falso techo, aunque se pueden colocar las mismas en otros planos de trabajo. Por lo que primero, hay que crear el elemento o plano de trabajo donde se van a alojar las luminarias. Para ello hay que ir a Inicio- techo, y se determina el nivel y el tipo de techo donde se alojarán las luminarias. El techo se puede crear con la opción Techo automático, seleccionando los diferentes espacios, o con Boceto de techo, con la que se dibuja el perímetro del techo. Una vez tenemos creado el afitrión, se puede ir a Sistemas- Eléctrica – Luminaria, y se colocan las luminarias en el mismo. Se ha de tener presente, que si previamente no se ha creado el plano anfitrión, el programa no permite colocar la luminaria.
Las luminarias también se encuentran en el cuadro de navegación, por lo que también se pueden colocar arrastrando las mismas desde dicho cuadro hasta la planta. Cada luminaria tiene un plano anfitrión por defecto, por lo que en el caso de una luminaria para plano vertical, la familia busca una cara vertical donde insertarse porque está pensado así, aunque se puede cambiar
También se puede posicionar la luminaria en la planta, clicando sobre la misma que hay en el cuadro de navegación, y con botón derecho se indica Crear ejemplar.
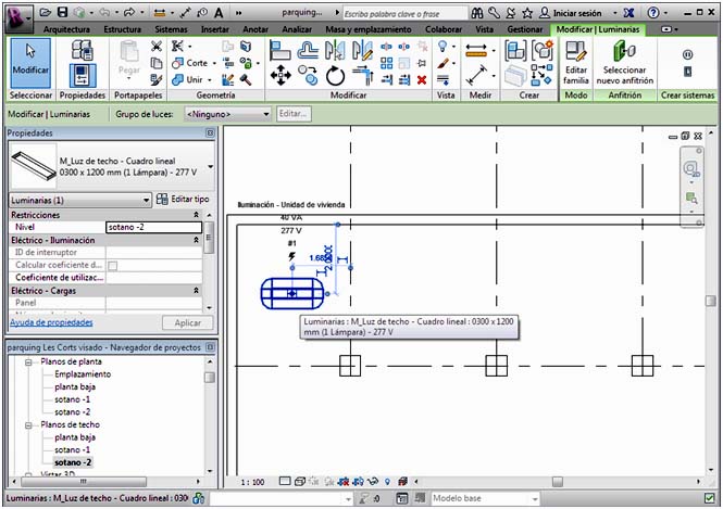
Una vez colocada la primera luminaria hay que ir a la sección y asegurarse de que la luminaria está bien colocada (puede pasar que si no lo comprobamos esté encima del falso techo).
Para copiar luminarias, se puede realizar con la tecla control, pulsando la misma y de esta forma se van copiando luminarias, o bien, con la opción Crear similar.
Realizando líneas de detalle, tenemos una ayuda a colocar las luminarias de una forma correcta geométricamente.
Si clicamos dos veces en la luminaria podemos acceder a la Familia de la misma.
Si seleccionamos la luminaria, y en el cuadro de navegación, elegimos la opción Definición de origen de luz – Editar, aparece el siguiente cuadro, donde se clasifica la luminaria en un tipo de Forma de emisión y de Distribución de la luz. Características que pueden ser modificadas en función de las necesidades del proyecto.
En Modificar – Tipos de familia, se accede al cuadro de características técnicas de la familia de la luminaria.
Y volviendo al proyecto, se puede activar el haz de luz de la luminaria para realizar renders.
En la sección en Modificaciones de visibilidad (cuadro de propiedades)- luminarias–origen de luz (activar esta opción).
También se pueden agrupar algunas luminarias formando un grupo. Para ello hay que seleccionar la luminaria e ir a la opción de Grupo de luces, que se encuentra en la barra horizontal superior, e indicar Editar/Nuevo.
Esta opción es muy interesante en el diseño de instalaciones, ya que permite definir las luminarias que pertenecen a una línea de alimentación eléctrica.
Contenido Web de Yolanda Muriel está sujeto bajo Licencia Creative Commons Atribución-NoComercial-SinDerivadas 3.0 Unported.









