En este artículo se analiza la puerta corredera de vidrio de Klein Unimatic. Esta puerta está formada por dos paneles de vidrio correderos de espesor 10 0 12 mm, que forman un ángulo entre ellos de 180º o bien 90º (esquina), y el hueco que cierran puede llegar a tener una longitud máxima de 2,50 metros. No existe guía en el suelo, y el perfil de la guía superior es un Perfil de aluminio anodizado “Silver” (AA10 ISO 7599, 10 micras). La apertura sincrónica permite que las dos hojas de vidrio de la puerta se abran a la vez.
La diferencia respecto los dos modelos anteriores de puertas correderas de vidrio que se han visto de Klein, es que en este modelo la guía superior se instala en la pared, y no en el forjado o falso techo. Además, la sujeción de la hoja de vidrio de la puerta se realiza mediante mordazas a presión sin mecanización del cristal (vidrio templado o laminado).

La sección de la puerta es la siguiente:

Y una visión en 3D es la siguiente, cuando las hojas correderas de vidrio forman un ángulo de 180º:

Y cuando las hojas correderas de vidrio forman 90º:

El archivo revit que se puede descagar en la página web del fabricante, tiene una Vista en planta siguiente:

Y una vista 3D:

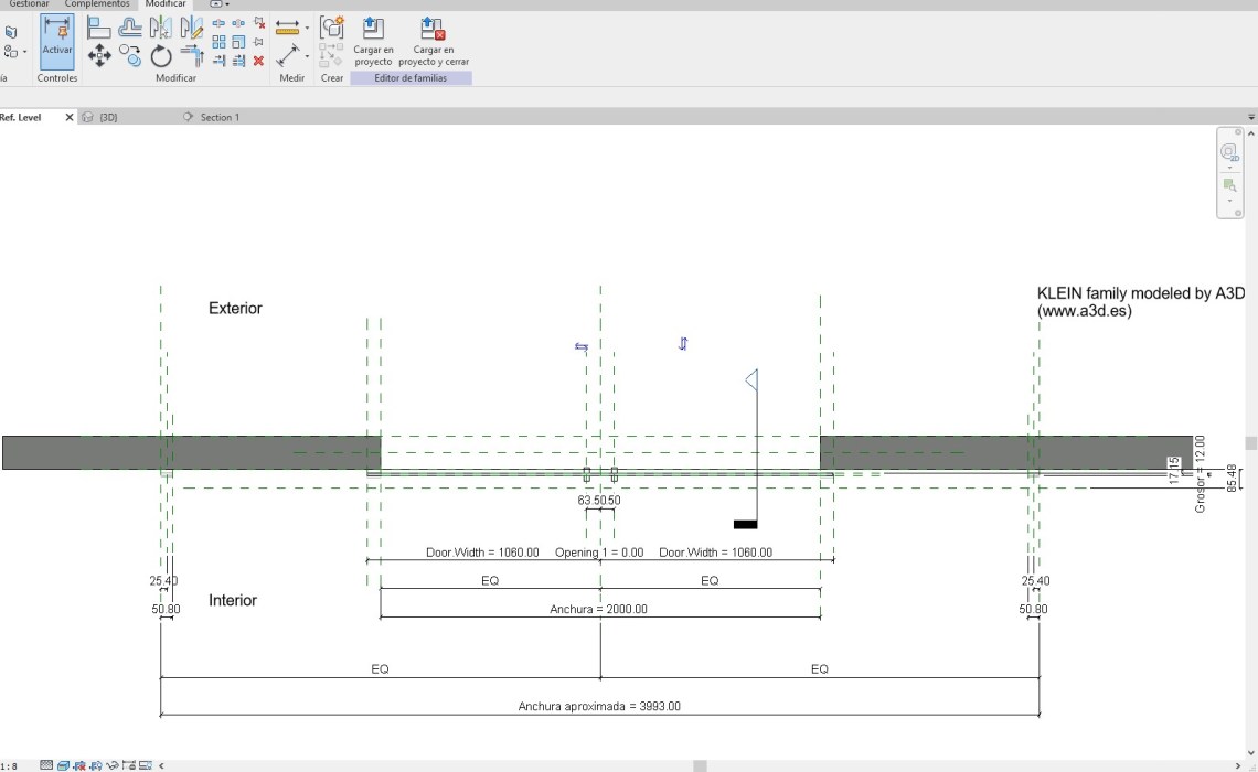
También dispone de Vista sección, donde el perfil de guía es un elemento de detalle:

En este archivo de puerta corredera revit se dispone de los siguientes perfiles superiores e inferiores (guías) como elementos de detalle:

© imágenes y archivo revit de la puerta corredera: Klein.
Contenido Web de Yolanda Muriel está sujeto bajo Licencia Creative Commons Atribución-NoComercial-SinDerivadas 3.0 Unported.
