REVIT ARCHITECTURE (717) – Planos de área (3) Creación de área

Las áreas son elementos del modelo como por ejemplo una puerta o un muro. Las áreas se pueden crear de dos formas:
  • Añadiendo filas a una tabla de planificación. Se indican las áreas en la tabla de planificación en una fase inicial de estudio del proyecto, por ejemplo, y luego con las herramienta área se colocan estas áreas indicadas en la tabla en la vista de planta.
  • Con la herramienta área en una Vista de plano de área, con el procedimiento que se indica a  continuación.
Primero se ha de abrir una Vista de plano de área. Seguidamente se ha de realizar los Contornos de área. Y utilizar entonces la herramienta que se encuentra en Arquitectura – Habitación y área – Área – área. 
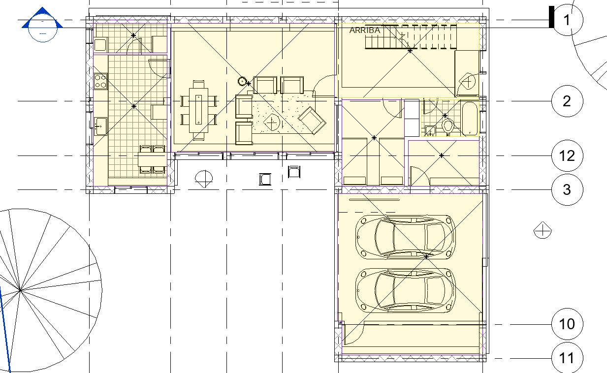
En el siguiente ejemplo de Vista de plano se puede ver una planta de vivienda unifamiliar con todos los espacios de planta baja con un área creada.

4914

 

Para colocar una etiqueta de área se puede seleccionar la opción Etiquetar al colocar, que se encuentra en el espacio de trabajo propio de la herramienta Área, en su barra horizontal superior, de forma que cada vez que se coloca un área se coloca la Etiqueta de área asociada a esa área. En caso de que no se necesita colocar la Etiqueta de área cuando se coloca el área hay que tener desactivada esta opción.

 

4915

 

En la barra horizontal superior del espacio de trabajo de la herramienta Área se encuentra también las opciones para determinar la orientación de la etiqueta (vertical o horizontal) o bien si la etiqueta tiene que tener Directriz o no.

 

4916

4917

 

También existe una opción en la barra superior del espacio de trabajo de la herramienta Área que es el campo Área que proporciona un desplegable donde se puede seleccionar la opción Nuevo para seguir creando áreas o bien seleccionar una de las áreas ya creadas en la Vista de plano.
4918

 

En el siguiente ejemplo se puede ver la planta de la vivienda unifamiliar con todas la áreas creadas y las etiquetas asociadas a ellas.
4919
 
Se puede instalar el área en una vista de plano de forma que aparece la forma geométrica de un rectángulo sin ajustar a los límites o contornos del espacio, ya que éstos no han sido creados todavía, y luego realizar los contornos de área del espacio, de forma que automática el área se ajusta a estos contornos.

 

4920

 

En Vista – Gráficos – Visibilidad/Gráficos , y en la ficha Categorías de modelo, en Área se puede seleccionar Relleno interior o Referencia o ambos, de forma que las áreas creadas aparecen visibles en la Vista de plano.

 

4921

 

 

Licencia Creative Commons Contenido Web de Yolanda Muriel está sujeto bajo Licencia Creative Commons Atribución-NoComercial-SinDerivadas 3.0 Unported.

Responder

Por favor, inicia sesión con uno de estos métodos para publicar tu comentario:

Logo de WordPress.com

Estás comentando usando tu cuenta de WordPress.com. Cerrar sesión /  Cambiar )

Google photo

Estás comentando usando tu cuenta de Google. Cerrar sesión /  Cambiar )

Imagen de Twitter

Estás comentando usando tu cuenta de Twitter. Cerrar sesión /  Cambiar )

Foto de Facebook

Estás comentando usando tu cuenta de Facebook. Cerrar sesión /  Cambiar )

Conectando a %s