Revit crea automáticamente Cotas con el objetivo de control del modelo, y por defecto, estas cotas automáticas no se ven.
En Gráficos – Visibilidad de gráficos se accede al cuadro de diálogo Modificaciones de visibilidad/gráficos, y en Categorías de anotación, activando cotas de boceto automáticas se pueden activas estas cotas automáticas.



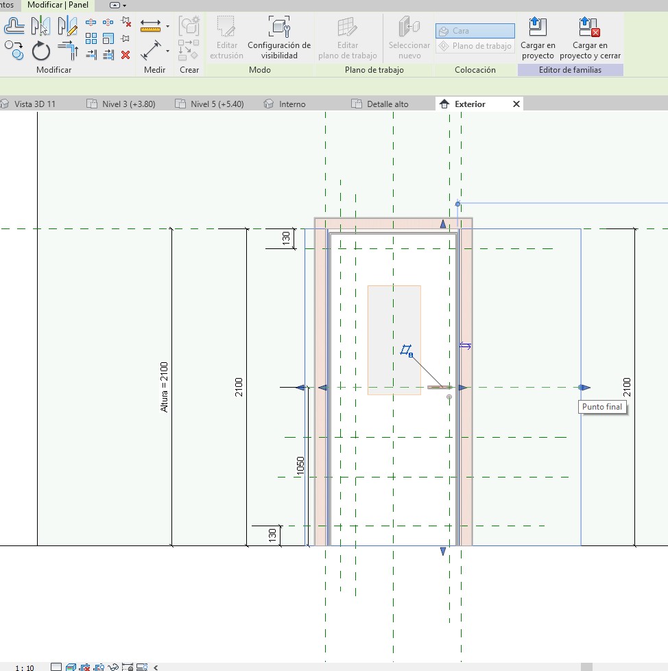
En el siguiente ejemplo se puede ver una puerta en Vista de alzado en la que se ha añadido un hueco.

Si se edita este hueco se puede ver en su espacio de trabajo las cotas automáticas.

A veces las cotas automáticas no funcionan correctamente, como en casos de que no restringen la geometría cuando se modifica las dimensiones de un elemento que aloja dentro de él otro elemento. Por ejemplo, en el ejemplo de la puerta se puede modificar la anchura de la puerta, y si las cotas automáticas no funcionan correctamente, el hueco realizado en la misma no mantiene sus dimensiones, sino que las incrementa (en este caso se tendrían que realizar nuevas cotas de restricción de geometría para el hueco acotando la geometría del mismo respecto los planos de referencia existentes o nuevos que se quieran crear).
En el ejemplo de la puerta se ha aumentado las dimensiones de anchura de la puerta

Las dimensiones del hueco realizado en la puerta se han mantenido igual, de forma que en este caso se puede decir que las cotas automáticas y sus restricciones han funcionado correctamente.

Contenido Web de Yolanda Muriel está sujeto bajo Licencia Creative Commons Atribución-NoComercial-SinDerivadas 3.0 Unported.
