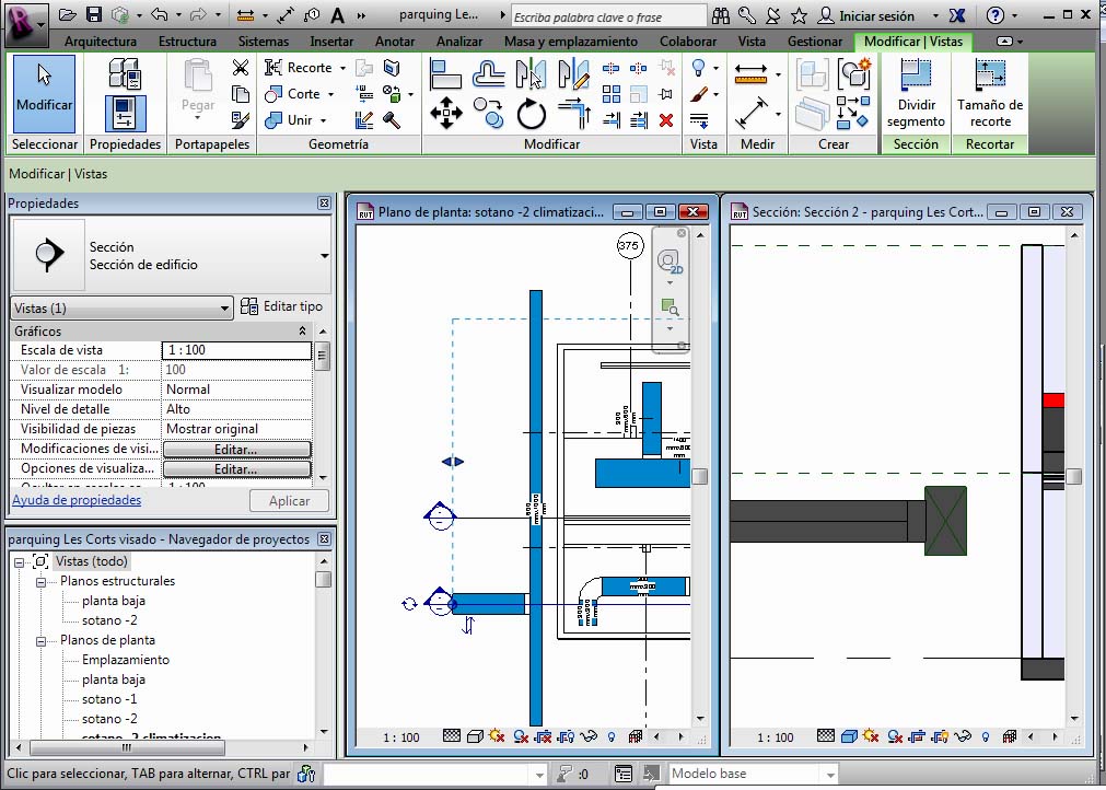
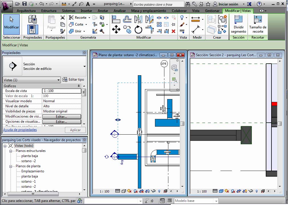
En el caso que los Conectores se encuentren fuera del Rango de vista, cuando se quiera realizar un nuevo conducto en alzado, el programa posiciona el nuevo conducto en el eje contenido en el plano de la vista, y une el nuevo conducto al existente por medio de una unión en T.
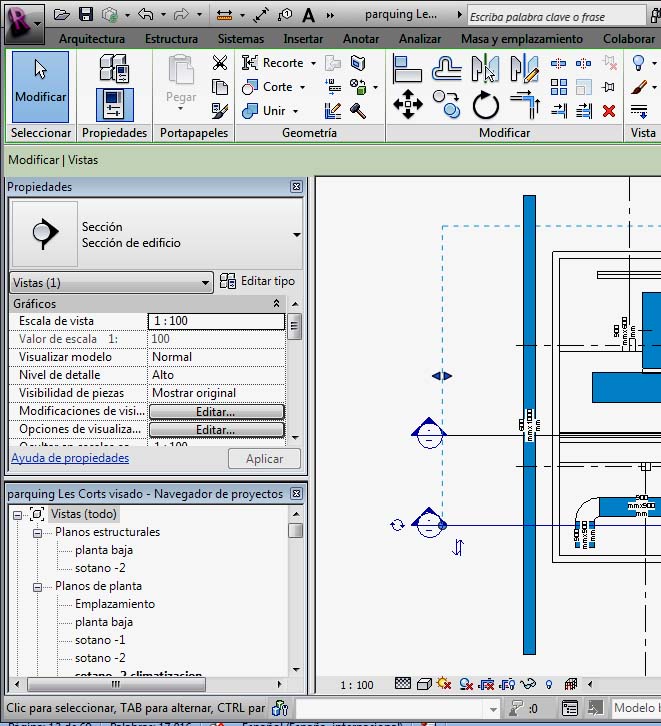
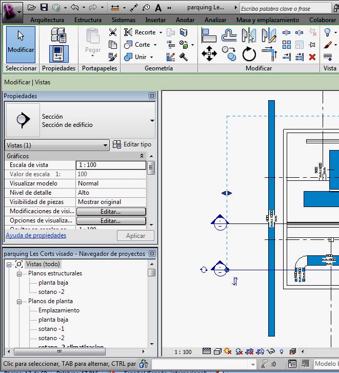
En la siguiente imagen se puede ver una situación de Conectores fuera del plano de vista de alzado:
En el siguiente ejemplo se puede ver un nuevo conducto, tanto en una vista de plano como una vista de alzado, posicionado por el programa de esta forma.
Contenido Web de Yolanda Muriel está sujeto bajo Licencia Creative Commons Atribución-NoComercial-SinDerivadas 3.0 Unported.


